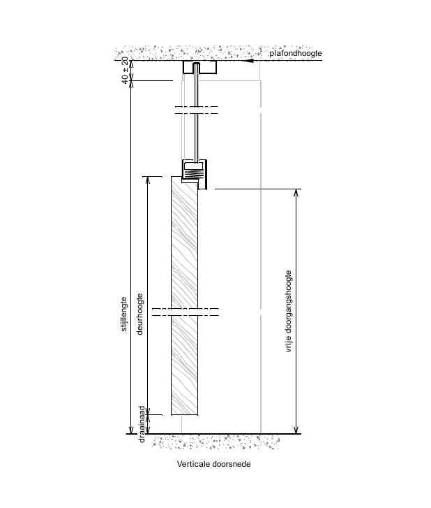
Het model A11 is een stalen kozijn met bovenlicht, uitschuifstukjes en plafondprofiel. Geschikt voor woningbouw met diverse maatvoeringen en opties zoals geluidswering en verschillende standaard deurhoogtes. Ideaal voor nieuwbouw en renovatie. Dit hoogwaardige stalen deurkozijn is verkrijgbaar voor verschillende wanddiktes van 70 mm tot 155 mm. Het kozijn kan geleverd worden als stomp of opdek uitvoering.

Het Model A11‑kozijn is robuust uitgevoerd met een stalen plaatdikte van 1,0 mm en voorzien van een standaard Nemef slotgaten patroon voor betrouwbare beveiliging. Met opties voor geluidswerende uitvoering, biedt dit kozijn maximale functionaliteit en maatwerk‑mogelijkheden.

Perfect te combineren met stompe of opdek deuren in uiteenlopende breedtes en afmetingen. Bestel dit kozijn bij Top Deuren – jouw specialist in kwalitatieve deurkozijnen en binnendeuren.

Evert-Jan

Onze deuren specialisten helpen u graag verder!

Topnieuws in je mailbox

Ontvang de beste aanbiedingen en persoonlijk advies Schrijf u in voor de Top Deuren nieuwsbrief.